Address
Subotički put b.b. 25000, Sombor
Čelične konstrukcije – Zavareni spojevi

Puni nosači
Preseci nosača: Pregled daju sl. 1 i 2. Sl. 1a prikazuje nosač pojačan navarenim pojasnim lamelama. Iz širokog čelika i limova mogu se sastaviti preseci proizvoljne nosivosti (sl. 1b do e). Otvorenu spojnicu između ugaonih šavova treba izbeći zašiljavanjem vertikalnog lima (sl. 1c). Presek nosača može se prilagoditi potrebnom otpornom momentu dodatnim pojasnim lamelama. Preseci na sl. Preseci na sl. 2d do f imaju to preimućstvo što šav na sučeljak dolazi u područje manje debljine rebra. Ovde šavovi mogu biti naročito lako ispitivani rendgenskim zracima.

Sl. 1 – Preseci nosača

Sl. 2 – Preseci nosača od specijalnih profila
Nastavak vertikalnog lima: Razvoj se odvijao na potpuno odgovarajući način. Izvođeni su nastavci sa podvezicama. Krstasti nastavak nije zadobio veći značaj u mostogradnji, ali se ipak pokazao dobar u zgradarstvu. Pošto su upravni nastavci na sučeljak zbog malih dozvoljenih napona bili neekonomični, pronađeni su nastavci sa povećanom dužinom šava.
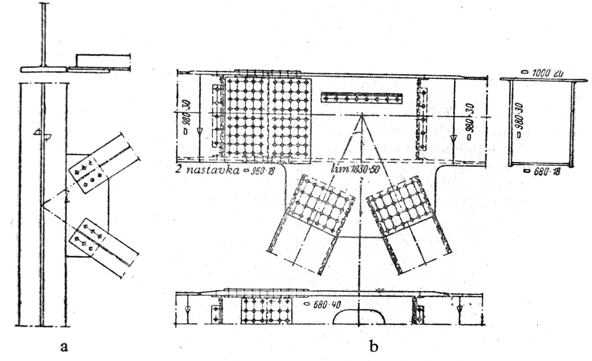
Univerzalni nastavak: Sl. 3 prikazuje nastavak glavnog nosača jednog mosta na autoputu sa pojačanim rebrom. Sl. 4 daje nastavak jednog mosta na autoputu. Ovaj se nastavak ne razlikuje pri najboljem izvođenju po izgledu i načinu dejstva od nenastavljenog nosača, samo je jačina na zamor nešto niža. Rešenje nastavka zavisi od toga da li je u pitanju radionički ili montažni nastavak. Pošto u radionici na raspolaganju stoje bolja pomoćna sredstva, po mogućnosti se zavarivanje na gradilištu ograničava. Sl. 5 prikazuje podelu jedne grede duge 63m. Nosači su isporučeni na gradilište u delovima od 38m i 25m dužine, gde su bili zavareni samo sa „B“ označeni nastavci. Montažni nastavci su izvedeni kao U-nastavci, da bi se izbeglo zavarivanje nad glavom.

Sl. 3 – Most na autoputu kod Hattenheim-a

Sl. 4

Sl. 5 – Raspored nastavaka
Zavarivani su kontinualni puni nosači pri napredovanju montaže po otvorima bez skela, tako npr. kod jednog drumskog mosta sa otvorima od 42m. Delovi nosača namepteni su plovnim kranom i posle ugradnje svih elemenata zavareni. Glavni nosači su pri tome bili vezani zavrtnjevima pomoću podvezica sa otvorima (sl. 6). Kroz otvore u podvezicama mogao se veći deo šava vertikalnog lima zavariti, pre nego što su morale biti skinute podvezice. Sl. 6 sadrži dalje podatke o pripremi U-šavova za specijalne profile u gornjem i donjem pojasu.

Sl. 6 – Podvezice sa otvorima
Ukrućenja: Pune zavarene nosače je neophodno dobro ukrutiti protiv izbočavanja vertikalnog lima i bočnog izvijanja pojaseva, sem toga treba održati krivljenja pri zavarivanju na malom nivou. Naponi od skupljanja na vertikalnim ukrućenjima su istraživani od O. Graf-a. Pri ispitivanom redosledu radova (prvo su zavarena ukrućenja, onda glavni šavovi) nastupili su u ukrućenjima i oblićžnjim trakama vertikalnog lima znatni naponi od skupljanja. Ako ukrućenja već naležu na pojaseve pre izvlačenja glavnih šavova, onda je sprečeno skupljanje pojasnih lamela. U pojasnim lamelama pojavila su se u podužnom pravcu talasasta savijanja do 2mm, u poprečnom pravcu oko 0,25mm (sl. 7). Prema toma, u pojasnim lamelama mora da su postojali znatni naponi savijanja u oba pravca. Nosivost je bila ograničena pojavom velikih deformacija, a ne jačinom na kidanje donjeg pojasa. Prema rezultatu ogleda na zamor, kod mostova se zahteva da se ugrade dobro upasovane pločice između ukrućenja i pojasa, koje su osigurane za ukrućenja prihvatnim varom. Ukrućenja i priključci su tako izrezani da glavni šav ostaje slobodan (sl. 8). U zgradarstvu u većini slučajeva ne postoje nikakve sumnje u to da se ukrućenja zavaruju neposredno za pojaseve. Presecanje šavova i njihovo suviše jako gomilanje ipak je i ovde bolje izbegavati.

Sl. 7 – Deformacija pojaseva pri zavarivanju

Sl. 8 – Ukrućenje sa dobro upasovanim pločicama
Puni nosači i okviri
Lučni nosači i vitki lukovi: Lučni nosači pružaju u odnosu na prave pune nosače malo specijalnog. Međutim, priključci dvozidnih štapastih lukova za jednozidne grede za ukrućenje, kakvi su bili izvedeni na dva najveća zavarena mosta na autoputu, spadaju u najinteresantnije konstrukcije koje su bile zavarivane. Na mostu na autoputu preko Leha kod Duisburga bio je korišćen u krajnjem čvoru, radi olakšanja radova na zavarivanju, masivni obrađeni komad od kovanog čelika. Ovaj (sl. 9) preuzima sile iz luka i prenosi ih u gredu za ukrućenje. On je snabdeven sa 50 mm jakim ispustom, koji prolazi kroz jedan prorez do gornjeg pojasa grede za ukrućenje i koji je zavaren za vertikalni lim, pojačan na debljinu 50 mm.

Sl. 9
Okvirne konstrukcije: Na uglovima okvira najbolje se vide preimućstva tehnike zavarivanja, koja dozvoljava da se izvedu komplikovani oblici bez naročitih teškoća. Jedan ugao okvira sa velikim opterećenjem prikazan je na sl. 10. Konstrukcija ima zavarene radioničke nastavke. Montažni nastavci vezani su upasovanim zavrtnjevima. Pri navarivanju ukrućenja između nožica spojenih nosača, javljaju se visoki naponi od skupljanja koji su ponekad dovodili do naprslina. Naponi od skupljanja su znatno smanjeni kad se mesto punih rebara navare (sl. 11a) samo krilni limovi (sl. 11b).

Sl. 10

Sl. 11

Sl. 12 – Čvor jednog belgijskog mosta s okvirnim nosačima
Priključci podužnih nosača kruti na savijanje: U kolovoznom roštilju mostova može se postići veliko uprošćenje primenom zavarenih veza. Jačina na zamor priključaka podužnih nosača itd. pri opterećenju na savijanje, osvetljena je ogledima O. Graf-a (sl. 13). Po tome, priključak sa šavom na sučeljak na zategnutoj strani ima veću jačinu na zamor pri jednomislenom naprezanju na savijanje σUb od veze kod koje je zategnuta nožica priključena ugaonim šavovima.

Sl. 13
Rešetke
Zavarene rešetkaste konstrukcije: Starije rešetke su bile po oblicima i priključcima kopije zakovanih konstrukcija (sl. 14). To je necelishodno, naročite osobine zavarenih veza moraju biti uzete u obzir već pri izboru poprečnih preseka. Od značaja je i veća krutost svih veza u odnosu na zakovane čvorove. Priključci dijagonalnih štapova u čvorovima rešetke kod većih sila, a naročito na gradilištu, teško se izvode. Pošto ovde u prvom redu dolaze u pitanje veze sa ugaonim šavovima, jačina na zamor je srazmerno mala. Veće praktično značenje dobile su potpuno zavarene, tj. i u čvorovima zavarene rešetke prema tome samo u nekim specijalnim oblastima čeličnih konstrukcija. Tako npr. kod krovnih vezača, kod kranova ne visoko dinamički opterećenih, itd.

Sl. 14
Za obrazovanje preseka dolaze u obzir u prvom redu plošti čelici i limovi. Kod zavarenih konstrukcija izrađuju se šuplji preseci bez naročite teškoće, koje su od prednosti pritisnutih štapova zbog svoje torzione krutosti. Specijalni slučaj okrugle cevi zaslužuje naročiti pomen. Zavarene cevaste konstrukcije našle su široku primenu npr. u izgradnji kranova ili lakih konstrukcija u zgradarstvu. Kod nastavka i priključka šupljih preseka mora se u stvari računati s izvesnim konstruktivnim teškoćama i dopunskim koštanjima. Zavareni preseci često se na krajevima skupljaju da bi se priključak mogao lakše zakovati (sl. 15). Naročite mere potrebne u radionici i na gradilištu kod zavarenih rešetkastih konstrukcija otežavaju primenu, ukoliko se ne radi o nosačima sa neznatnim ili pretežno mirnim opterećenjem. Za dinamički opterećene rešetke i za one sa velikim silama, pravilo je bilo da se samo pojedini elementi zavaruju, ali se njihovo međusobno spajanje vršilo pomoću zavrtnjeva. Time su pre svega uklonjene i teškoće pri montaži; i rešetke od zavarenih elemenata mogu se montirati po istim postupcima kao i one iz zakovanih štapova.

Sl. 15
Čvorni limovi, koji jednovremeno primaju dijagonale, zakivaju se na uobičajen način za rebra pojaseva ili se sa njima tupo zavaruju (sl. 16a). Poslednje ima manu „ugaonih šavova koji počinju“, koji su štetni za jačinu na zamor nosača. Odlučujući korak ka ispravnom davanju oblika rešetkastih mostova prema zavarivanju učinjen je kod železničkog mosta preko Rajen kod Majnz-a (Kaiserov most). Tamo su na 50 mm pojačani čvorni limovi pomoću šavova na sučeljak umetnuti u vertikalne limove pojaseva 30 mm debljine. Prelazi su postepeni, oblikovanje se može videti sa sl. 16b. Nastavci pojasnih štapova nalaze se pored čvorova.

Sl. 16 – Čvorni limovi a) sprega protiv vetra; b) železničkog mosta preko Rajne kod Mainz-a (Kaiserov most, 1954)
Pojačanje zavarivanjem: Naknadno pojačanje čeličnih konstrukcija ubraja se u najteže radove, naročito kad ga treba izvršiti na opterećenoj konstrukciji. Kod zakovanih veza je upasivanje pojačanja, bušenje i povezivanje sa postojećim delovima dugotrajno i skupo. Pošto je zavarivanje mogućno bez dugotrajnih prethodnih priprema kao i bez raskivanja postojećih veznih sredstava, bilo je blisko da se pokuša putem zavarivanja pojačanje preseka i priključaka rešetki. Zajedničko delovanje zakivaka i varova u prijemu sila u štapovima doduše je podrobno ispitano teorijski i u ogledima. Ipak, u praktičnom izvođenju pojavile su se, delom tek posle duže upotrebe, naprsline i slomovi od zamora. Uzroci ovih teškoća bila su dejstva zareza uvarom i nagle promene preseka, a poneke od pojavljenih naprslina prouzrokovane su visokim naponima od skupljanja.
Zavarivanje zakivanjem
Neko vreme je bilo zabranjeno da se jednovremeno primenjuje zavarivanje i zakivanje. Naročitu pažnju su uživale „potpuno zavarene konstrukcije“ u kojima su bili potpuno izbegnuti zakivci i zavrtnjevi. Danas se opet primenju zavarivanje i zakivanje paralelno na istom objektu. U mnogim slučajevima je celishodno zavarivati samo radioničke nastavke, a montažne naportiv zakovati. Treba izbegavati primenu obe vrste spajanja u istom nastavku, jer se ne može postići jasna raspodela sila zbog skupljanja vezanih za zavarivanje i klizanje zakivaka/zavrtnjeva.